Królewskie Miasto Darłowo      Darłowo na Facebook'u  Darłowo na YouTube  Radio Koszalin  Pogoda

Darłowo - Darłówko idealny duet do wypoczywania
linia ozdobna
Królewskie Miasto Darłowo linia ozdobna

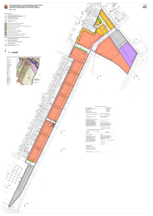
Dyskusja publiczna nad dwoma jednostkami miejscowego planu zagospodarowania przestrzennego.

Darłowo, 5 września 2016 roku

 

 

W czwartek 8 września  2016 w godzinach od 14 do16 w sali konferencyjnej darłowskiego ratusza odbędzie się publiczna dyskusja nad  przyjętymi rozwiązaniami  w projektach miejscowych planów zagospodarowania przestrzennego dla dwóch obszarów. Jeden o powierzchni 10 ha dotyczy terenów leżących po obu stronach ulicy Nadmorskiej, leżący w jednostce strukturalnej B obszar B5 w Darłówku zachodnim. Drugi  o powierzchni 3,1 ha, leżący przy ul. Portowej  przynależny do obszaru A2 jednostki strukturalnej A- Darłowo Południe.  Szczegółowe informacje znajdują się  w Biuletynie Informacji Publicznej w Obwieszczeniu  burmistrza Darłowa   o wyłożeniu do publicznego wglądu projektu miejscowego planu zagospodarowania przestrzennego dotyczącego Obszarów A-2 i B-5. Jednocześnie z projektami planów wyłożona została prognoza oddziaływania  na środowisko.   

 

L. Walkiewicz

Dyskusja publiczna nad dwoma jednostkami miejscowego planu zagospodarowania przestrzennego.  Dyskusja publiczna nad dwoma jednostkami miejscowego planu zagospodarowania przestrzennego.

Zobacz nas na Facebook'u

Polityka prywatności

Strona korzysta z plików cookie w celu realizacji usług zgodnie z Polityką Cookies. Możesz określić warunki przechowywania lub dostępu do cookie w Twojej przeglądarce lub konfiguracji usługi.

 

Zgadzam się Nie, chcę dowiedzieć się więcej